Un pigeonnier gîte de charme
Des atouts à exploiter
Un pigeonnier revisité : l’équilibre parfait entre authenticité et confort
Objectifs :
- Créer un gîte pour 4 personnes entièrement équipé, adapté pour un week-end comme pour un plus long séjour, d’assez haut standing
- Séduire les familles, les couples en escapade romantique et les personnes en déplacement professionnel
- Conserver le char du pigeonnier (briques, charpente,…) tout en apportant une touche de modernité
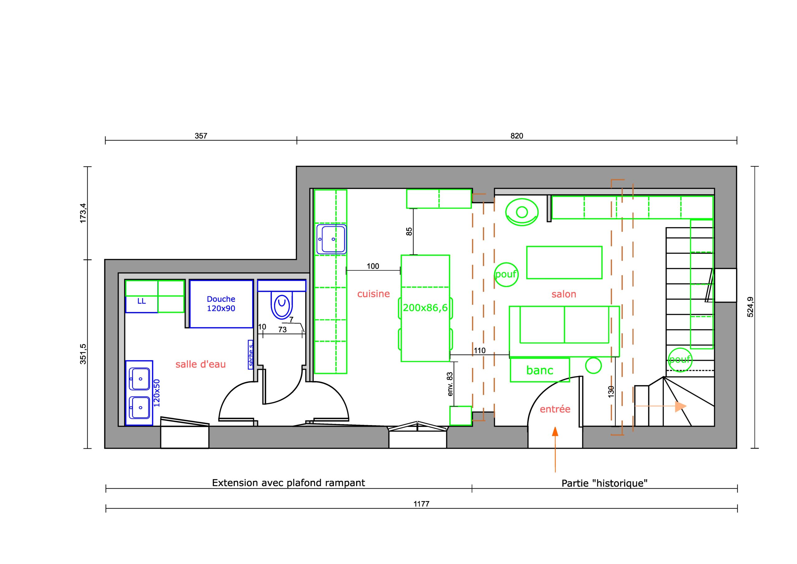
Vue d’ensemble du projet
Ce pigeonnier typique du Tarn, probablement du XVIII ème siècle, photographié ici au début des travaux, est constitué de 3 niveaux.
Le rez-de-chaussée est initialement occupé par un grand four à pain dans la partie « historique » et a fait l’objet dans un passé beaucoup plus récent d’une extension aux aménagements surprenants et totalement dysfonctionnelle. Il est prévu de démolir complètement le four, supprimer les cloisonnements de l’extension et créer une grande ouverture entre la partie historique et l’extension afin de pouvoir créer un grand séjour ouvert. Ce niveau recevra également la salle d’eau et des toilettes séparées.
Les premiers et deuxièmes étages, constitués d’une seule pièce par niveau et reliés par un escalier en bois sur lequel ils sont ouverts, deviendront deux chambres.
L’isolation thermique, l’électricité ainsi que les revêtements (hors murs de briques qui seront conservés apparents et plancher du deuxième étage) vont être entièrement refaits.
Rez-de-chaussée : les espaces de jour et pièces d’eau
Dès l’entrée, on doit se sentir chez soi et avoir un effet coup de cœur.
Le salon et la cuisine occupent un grand espace convivial, confortable mais également de standing assez élevé avec tous les équipements nécessaires et des détails soignés. Un poêle à bois chauffera efficacement l’espace en hiver.
Un petit sas isole les toilettes séparées et la salle d’eau qui intègre un coin buanderie.
Toute la partie correspondant à l’extension a des plafonds rampants qui sont conservés pour profiter du volume sauf au-dessus des toilettes où le chauffe-eau sera dissimulé.
Éclairage des espaces
Les éclairages sont prévus pour être fonctionnels, esthétiques et permettre de moduler l’ambiance. L’éclairage indirect du plafond rampant et du mur au-dessus du plafond du salon par une barre de spots dissimulée au dessus des meubles de cuisine mettra en valeur le volume et donnera une belle luminosité. Toutes les zones techniques sont bien éclairées et des luminaires plus conviviaux sont installés au salon et au-dessus de l’îlot.
Vues 3D réalistes du rez-de-chaussée
Premier étage : une chambre élégante et modulable
L’objectif pour cette chambre est qu’elle soit adaptée à un couple comme à des enfants. Les lits jumeaux pourront être rapprochés pour former un grand lit et la tête de lit a été conçue sur mesure pour permettre de déplacer les chevets suspendus selon la configuration choisie.
Vues 3D réalistes du premier étage
Deuxième étage : la chambre d’honneur
Cette chambre est la chambre maîtresse du gîte. Elégante et très confortable, elle est équipée d’un lit king size. Des rangements sont prévus ainsi qu’une penderie et il est possible d’ajouter un lit bébé. Un grand miroir agrémente l’espace et permet de se voir entièrement. La superbe charpente est un vrai atout charme de la pièce avec les murs de briques. On imagine bien de jeunes mariés profitant de l’espace







